header image

Nieuwe aanpak herontwikkeling naoorlogse portiekflats

Dinsdag 29 juni 2010

IMd Raadgevende Ingenieurs werkt in opdracht van woningcorporatie Mitros aan een nieuwe aanpak voor de herontwikkeling van naoorlogse portiekflats. Dat gebeurt op basis van een ontwerp van Dittmar Bochmann Architecten. De aanpak moet renovatie goedkoper maken dan sloop en nieuwbouw. IMd pleit tegelijkertijd voor een discussie over de bouwvoorschriften voor herontwikkeling. “Je moet je serieus afvragen of voor renovatie dezelfde eisen moeten gelden als voor nieuwbouw.”

Tussen 1945 en 1970 zijn in Nederland zo’n twee miljoen huizen gebouwd, voornamelijk portiekflats. Deze woningen zijn inmiddels in slechte conditie, maar vooral te klein. Sloop en nieuwbouw is tot nu toe de meest gebruikte oplossing. Renovatie is duurzamer maar is financieel meestal niet rendabel; bij het samenvoegen van de woningen blijven er te weinig ‘over’. Nieuwbouw is dan goedkoper. De nieuwe aanpak moet aan dit probleem een einde maken.

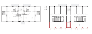
Aanvankelijk ging ook Mitros voor de aanpak van de wijk Kanaleneiland uit van sloop. Dittmar Bochmann Architecten stelde echter voor om de woningen aan de gevel zo’n vier meter uit te breiden. In die zone komen ook liften. Het ontwerp leverde het jonge bureau de eerste prijs op bij de Europan-ontwerpwedstrijd. IMd werkt nu samen met de architecten aan de uitwerking. Het doel is om een model te ontwikkelen dat ook voor andere naoorlogse portiekflats geschikt is.

Integratie staat in de aanpak centraal. Constructie, architectuur, comfort, programma en financiën worden in onderlinge samenhang op elkaar afgestemd. Ook de mogelijkheden van verticale uitbreiding worden onderzocht. IMd deed daar eerder ervaring mee op bij de renovatie van zes naoorlogse portiekflats in de Amsterdamse wijk Nieuw-West, de zogenoemde Dudokhaken.

Het grote struikelblok bij al dit soort projecten zijn de bouwtechnische eisen, stelt ir. Pim Peters, directeur van IMd. “Voor renovatie zijn de eisen gelijk aan die voor nieuwbouw. Als je aan die eisen moet voldoen is het technisch uiterst complex en daardoor financieel eigenlijk onhaalbaar. Een fractie minder streng en het lukt wel. En ook dan zijn het zeer comfortabele woningen. Die discussie moeten we in de bouw met elkaar durven voeren.”

Overige foto’s

Overige berichten